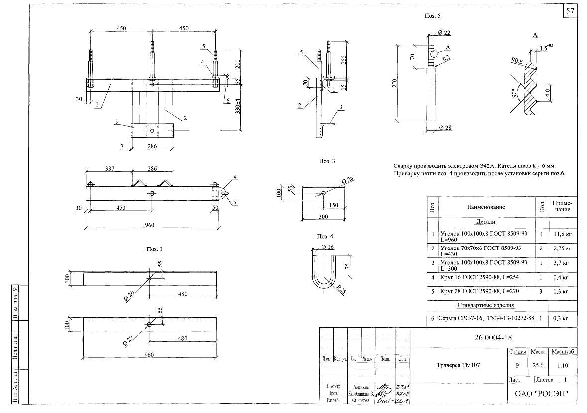
Траверса ТМ-107 (26.0004-18)
Обращаем Ваше внимание, что размещенная на данном сайте справочная информация о товарах не является офертой, наличие и стоимость необходимо уточнить у менеджеров ООО "ТРЭЙДСИП", которые с удовольствием помогут Вам в оформлении заказа.
Траверса ТМ-107 выпускается в соответствии с типовым проектом 26.0004 (26.0004-18)
При установке опор высоковольтных воздушных ЛЭП номинальным напряжением 10 кВ траверса ТМ-108 используется для крепления проводов линии.
Производство траверсы ТМ-108 осуществоляется из углеродистой стали, которая отличается высокой прочностью и надежностью. Для придания траверсе антикоррозионной стойкости она покрывается лаком на битумной основе типа БТ-577.
Крепление траверсы на опоре ЛЭП выполняется специальными крепежными хомутами, при этом каждый тип хомутов расчитан на применение с определенным видом стойки. Хомуты Х-1 используются со стойками СВ105 ,а хомуты Х-42 - сос тойкой СВ110. Поставка хомутов для определенного вида опор выполняется по отдельному заказу.




